Rif: IMMO-124948339
ARCENE
BERGAMO
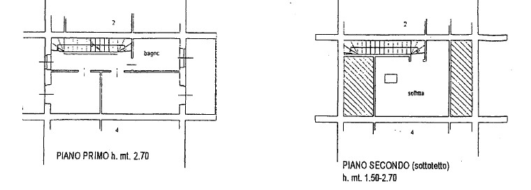
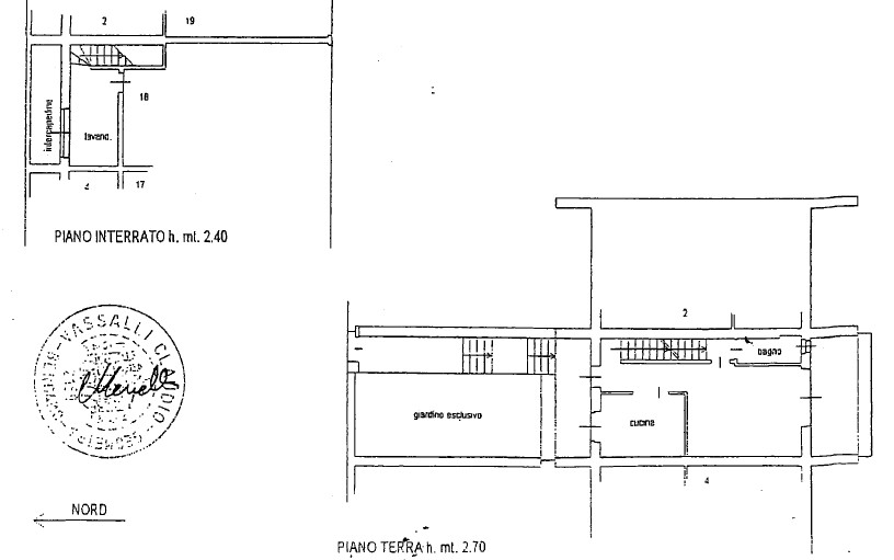
A 10 minuti da Treviglio, nel comune di Arcene, proponiamo in vendita una villetta a schiera disposta su tre livelli. al piano terra troviamo l'ingresso dal giardino privato, soggiorno con camino, cucina abitabile con terrazzo e il bagno. al primo piano la camera matrimoniale con balcone, cameretta e secondo bagno con vasca. al piano superiore mansardato e presente un locale open/space ideale come terza camera. al piano interrato troviamo la lavanderia e comodo box doppio in larghezza. L'immobile si trova a pochi minuti a piedi dalla stazione ferroviaria, inserito in tranquillo contesto residenziale, tenuto in ottimo stato, completo di clima e zanzariere. I consulenti di Immobiliare Treviglio, società presente sul territorio da oltre vent'anni, sono comunque sempre a disposizione per qualsiasi tipo di informazione, è gradito qualche giorno di preavviso per gli appuntamenti affinché si possa organizzare al meglio la visita dell'immobile. E nel caso non siate di Treviglio, è giusto ricordarvi che sono presenti: 2 stazioni ferroviarie, il casello autostradale BRE-BE-MI, l'ospedale, diversi ipermercati e tutti i servizi di prima necessità. L'immobiliare Treviglio è anche specializzata con esperienza ormai decennale nell'ambito delle aste immobiliari e del saldo e stralcio. prezzo richiesto euro 269.000,00
Consistenze
| Descrizione | Superficie | Sup. comm. |
|---|---|---|
| Principali | ||
| Immobile - piano terra | 50 Mq | 50 Mqc |
| Immobile - 1° piano | 50 Mq | 50 Mqc |
| Mansarda - 2° piano | 25 Mq | 25 Mqc |
| Cantina - piano interrato | 6 Mq | 2 Mqc |
| Accessorie | ||
| Box/Garage - piano interrato | 35 Mq | 18 Mqc |
| Totale | 145 Mqc | |









