Rif: IMMO-125154887
TREVIGLIO
BERGAMO
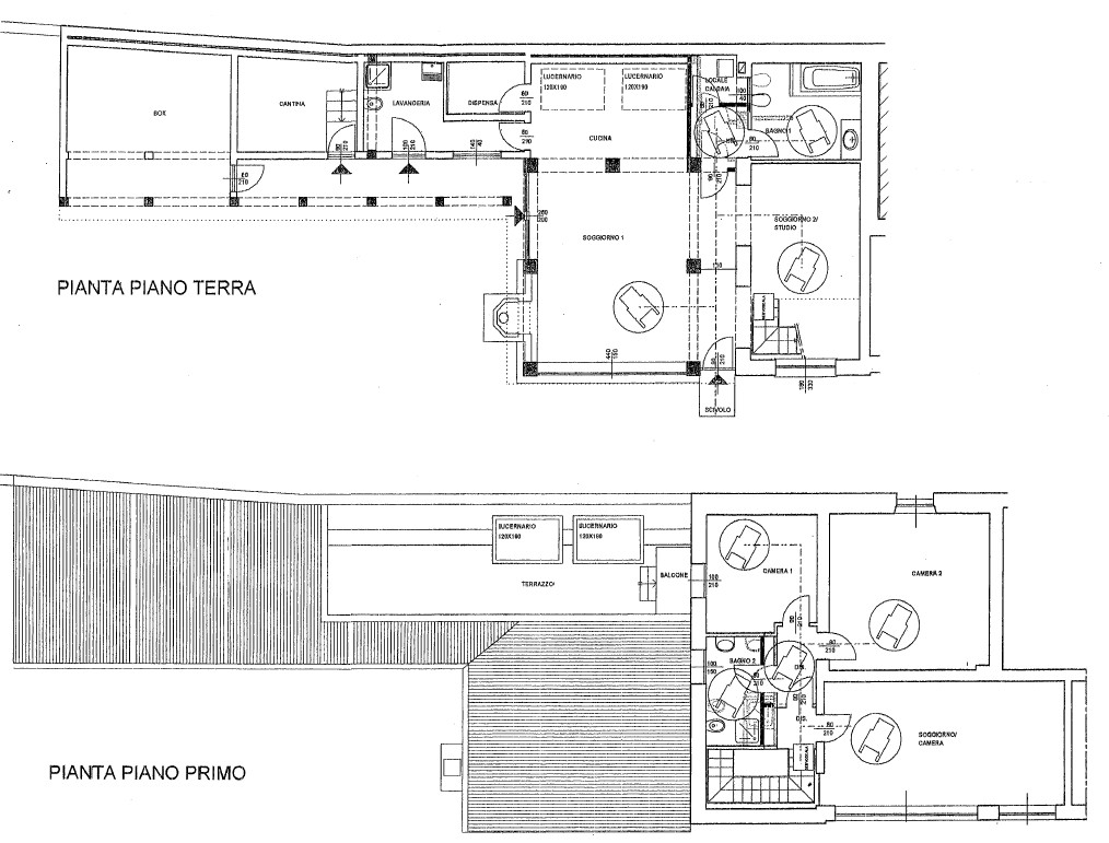
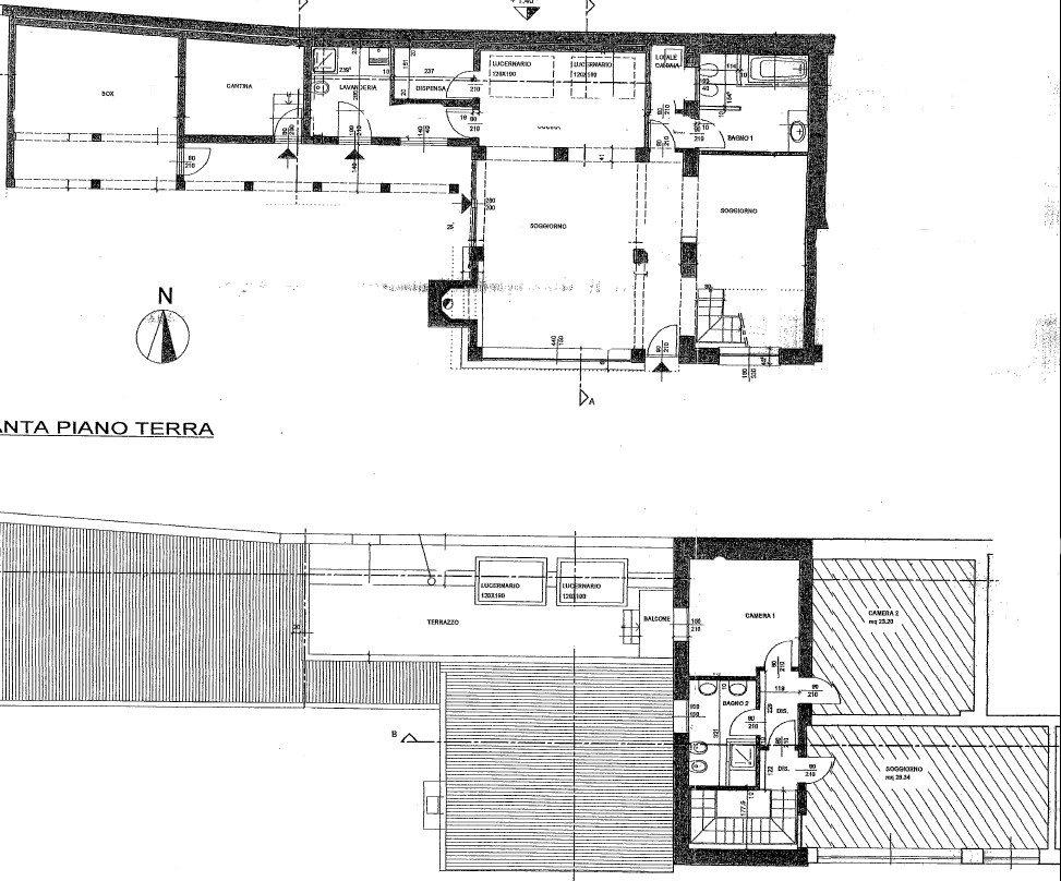
TREVIGLIO, zona nord, in posizione immersa nel verde e comunque a poca distanza da tutti i principali servizi, proponiamo porzione di cascina completamente ristrutturata, con ingresso indipendente ed inserita su un lotto di terreno di circa 2.500 mq in parte giardino ed in parte con alberi da frutto. L'abitazione disposta su due livelli è composta da un ampio ingresso che permette l'accesso al soggiorno con camino e ampia vetrata sul giardino, alla cucina e alla sala da pranzo. Completano il piano terra la dispensa, la lavanderia ed il disimpegno con il bagno di servizio. Al primo piano si trovano la camera matrimoniale con cabina armadio, la cameretta con un ampio terrazzo, il bagno ed un locale di circa 20 mq che può essere utilizzato nel modo più congeniale alla famiglia che vi abita. Adiacente all'abitazione si trova infine il box doppio in larghezza con apertura automatizzata. La richiesta è di Eu. 590.000, 00. La classe energetica è la 'F'. I consulenti di Immobiliare Treviglio, società presente sul territorio da oltre vent'anni, sono sempre a disposizione per qualsiasi tipo di informazione. É gradito qualche giorno di preavviso per gli appuntamenti affinché si possa organizzare al meglio la visita all'immobile. E nel caso in cui non siate di Treviglio, è giusto ricordarvi che sono presenti: 2 stazioni ferroviarie, il casello autostradale BRE-BE-MI, l'ospedale, diversi ipermercati e tutti i servizi di prima necessità. L'immobiliare Treviglio è anche specializzata con esperienza ormai decennale nell'ambito delle aste immobiliari e del saldo e stralcio.
Consistenze
| Descrizione | Superficie | Sup. comm. |
|---|---|---|
| Principali | ||
| Immobile - piano terra | 110 Mq | 110 Mqc |
| Immobile - 1° piano | 90 Mq | 90 Mqc |
| Cantina - seminterrato | 10 Mq | 2 Mqc |
| Terrazza - 1° piano | 20 Mq | 6 Mqc |
| Box/Garage - piano terra | 30 Mq | 15 Mqc |
| Giardino/Resede | 500 Mq | 50 Mqc |
| Terreno - piano terra | 2.000 Mq | 40 Mqc |
| Totale | 313 Mqc | |









